Back to Home Back to Badlands trip Back to Travel
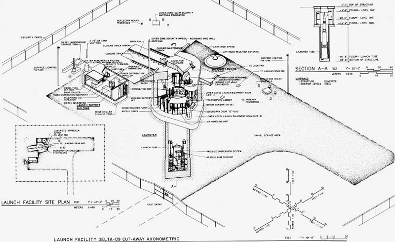
Delta 9 Silo
    I have included a few photos taken at the Delta-9 site of the Minuteman Missile Monument, because it has the distinction of having been an active silo, with an armed missile. The Delta-9 facility has no underground access; but does feature a greenhouse constructed over the silo, for viewing. It is located in a field, just off of interstate 90, on a gravel road accessed from exit 116. There is not much to see here, when compared to the facilities at the LCC; but there is something strikingly eerie, and rather sobering, about being at the site of one of the doomsday weapons of the sixties and seventies.

A view from just outside of the fence. When this silo was active, there would have been another fence a bit further out, with barbed wire. All of these sites are in plain view, and their locations are known. Still, they attract little attention.


Left:
The silo cover has been pushed back, a foot more than half way, and permanently fixed in place. An observation window was then built over the silo. The silo  cover weighs over 30 tons. 

Below:

A view down the silo, through the greenhouse. to the left of the photo can be seen access openings for servicing the missile.


This innocuous looking object is not a missile sticking out of a slab of concrete. it is a hardened receive only antenna, the mate of the hardened antenna at the LCC. It can also pick up signals from Looking Glass aircraft, or from other remote sources, ordering the missile to arm and launch. This guarantees that even if all local facilities are destroyed, and all communications are severed, that the missile can still be launched.

So how do you get in side of a nuclear missile silo? Well, the answer isn't "Through the silo cover". The silo cover can only be opened from the inside. Instead, you get in through this maintenance hatch.

The track and rails in this photo are used to pull the silo cover back for maintenance, or installation of a missile. There is a motor, which pulls the cover back along the track. Due to the weight of the silo cover, it can take a long time for cover to open. In an actual ,launch the cover is jettisoned by a hydraulic ram, to land over a hundred feet away.

A map of the silo area.
Back to the LCC Forward to the training silo